Электрический котел класс Комфорт-Плюс 15 кВт
Артикул: 🖶 Распечатать упрощённую версию
Котел модели Комфорт идеально подходит для автономного отопления загородных домов, коттеджей, бань, детских садов и других видов помещений. Удобный в использовании и легко подключаемый котел, уже содержит в себе циркуляционный насос, элементы группы безопасности: предохранительный клапан, воздухоотводчик, манометр. Снабжен цифровым терморегулятором с дисплеем, микропроцессорным управлением с ПИ-регулированием и датчиком комнатной температуры.
Предусмотрена возможность для подключения погодозависимого контроллера и GSM-управления. Данный электрокотел станет надёжным источником тепла в Вашем доме.
Номинальное напряжение питания ±10% 380
Гарантия 24 мес
- ✗ Уточняйте наличие
- Цена:По запросу Получить скидку!
Общая информация
Характеристики
ПРЕИМУЩЕСТВА
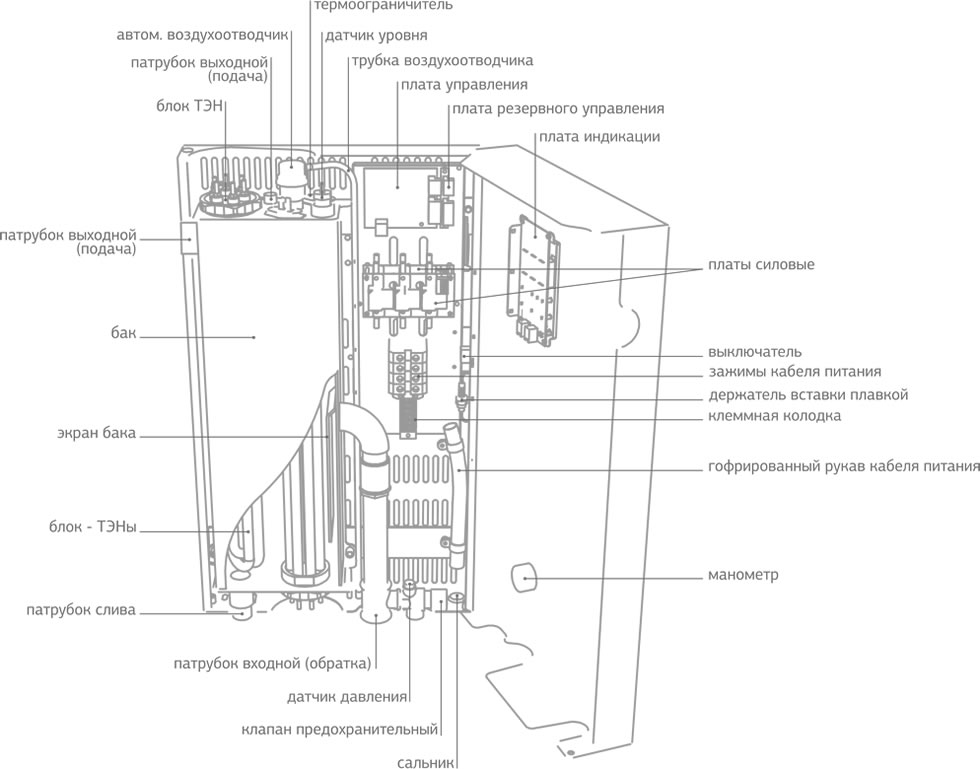
Котел-моноблок
Котел выполнен в одном корпусе с блоком управления, что упрощает монтаж и экономит пространство. Для начала работы достаточно подключить котел к системе отопления и подвести питание.
Нержавеющий блок-ТЭН
Нержавеющий блок-ТЭНы, впаянные в латунную гайку, не подвержены коррозии, уплотняются фторопластовой прокладкой
Крепление ТЭНов на общей гайке
Блок-ТЭНы состоят из 3-х ТЭНов, впаянных в общую латунную гайку. Блок-ТЭНы, в отличие от ТЭНов на фланце удобны в эксплуатации и техническом обслуживании
Защита внутренних элементов
Дополнительная теплоизоляция позволяет лучше сохранять тепло в котле увеличивая его КПД. Защищают внутренние элементы котла от перегревания.
Защита от перегрузок
Автоматические выключатели предназначены для защиты электрических цепей от перегрузок и токов короткого замыкания, а также для оперативного управления участками электрических цепей.
Защита от перегрева
Электрический котел снабжен термоограничителем, который отключает электронагреватель по достижении предельной температуры воды, что позволяет избежать перегрева теплоносителя.
Цифровой терморегулятор
Высокая цифровая точность регулирования и поддержания температуры теплоносителя в котле отопления.
Управление по темп. помещения
В состав котла входит датчик комнатной температуры. Управление по комнатной температуре повышает экономичность котла и создает комфортные условия в помещении.
Манометр
Манометр позволяет контролировать давление в котле.
Автоматический воздухоудалитель
Автоматический воздухоудалитель исключает образование в котле воздушной пробки и как следствие остановки циркуляции.
Предохранительный клапан
Предохранительный клапан предназначен для автоматического сброса давления сверх допустимого, путем выпуска рабочей среды в атмосферу.
Защита от слива теплоносителя
В верхней части корпуса прибора установлен датчик уровня (наличия теплоносителя), он обеспечивает отключение питания электрокотла в случае отсутствия теплоносителя в баке.
Циркуляционный насос
Насос предназначен для циркуляции теплоносителя по системе отопления и передачи тепловой энергии от котла к радиаторам отопления. Насос встроен в корпус котла, что значительно упрощает монтаж системы.
Ступени мощности
Несколько ступеней мощности делают регулировку температуры более плавной. Включение и выключение ступеней осуществляется каскадно – с задержкой нагрузка на контакторы и общую сеть снижается.
Возможность подключения комнатного термостата
Комнатный термостат устанавливается в контрольном помещении и обеспечивает постоянство температуры во всем доме, по заданной на нем температуре.
Возможность подключения недельного программатора
Недельный программатор работает по принципу комнатного термостата, но позволяет дополнительно выставлять изменение температуры на всю неделю по часам, что значительно экономит ресурсы котла.
Удобство установки
Экономия пространства помещения за счет малых габаритов котла. Удобство монтажа и подключения, кронштейн крепления к стене в комплекте.
Возможность применения незамерзающей жидкости
В электрокотлах "Невский" используются высококачественные ТЭНы из нержавеющей стали, что позволяет использовать в качестве теплоносителя как воду, так и незамерзающие гликолевые жидкости.
Экологичность
Электрокотлы безопаснее чем твердотопливные или жидкотопливные, не выделяют дыма и угарного газа, не требуют чистки. Электрокотлы можно использовать, как основной или резервный источник тепла.
Возможность подключения автоматики котла
Установив контроллер "Невский", Вы можете не беспокоиться о колебаниях уличной температуры. Контроллер отследит изменения температуры на улице и в соответствии с этим подаст нужную команду котлу. Суммарная экономия электроэнергии в течение отопительного сезона при применении контроллера составляет 25-35%
Устройство

Габариты

Технические характеристики
| ХАРАКТЕРИСТИКИ | ЕДИНИЦЫ ИЗМЕРЕНИЯ | ПОКАЗАТЕЛИ |
| Номинальная мощность, ±5% | кВт | 15 |
| Номинальное напряжение питания ±10% | В | 380 |
| Максимальное давление | МПа [Bar] | 0,4 [4] |
| Высота котла | мм | 678 |
| Ширина котла | мм | 389 |
| Толщина котла | мм | 113 |
| 1-я ступень | кВт | 5 |
| 2-я ступень | кВт | 10 |
| 3-я ступень | кВт | 15 |
| Диапазон регулирования температуры теплоносителя | ºC | 5 - 90 |
| Номинальный ток автоматического выключателя, при напряжении питания 380 В | А | 40 |
| Требуемая площадь поперечного сечения медного провода подводящего кабеля, при напряжении питания 380 В | мм² | 6 |
| Рекомендуемая отапливаемая площадь при высоте потолков не более 2,7м; t нар. -25°С | м² | 150 |
| Присоединительная резьба вход/выход тр. | дюйм | G 1” |
| Давление настройки пред. клапана | Bar | 3 |
| Объем бака | л | 8,4 |
| Масса | кг | 25,5 |
| Объем в упаковке | м³ | 0,03 |






