Вентиляторы типа ВКРС ДУ
Артикул: ВКРС ДУ 🖶 Распечатать упрощённую версию
Вентиляторы типа ВКРС ДУ низкого давления применяются в стационарных аварийных системах вытяжной вентиляции для удаления возникающих при пожаре газов и одновременного отвода тепла за пределы помещения. Вентиляторы могут перемещать газовоздушные смеси с температурой до 400 °С в течение 120 минут и до 600 °С в течение 60 минут.
Перемещаемая среда в обычных условиях не должна содержать липких веществ, волокнистых материалов, паров или пыли, иметь агрессивность по отношению к углеродистым сталям выше агрессивности воздуха и содержать пыль и другие твердые примеси в концентрации более 10 мг/м3.
- ✗ Уточняйте наличие
- Цена:По запросу Получить скидку!
Общая информация
Характеристики
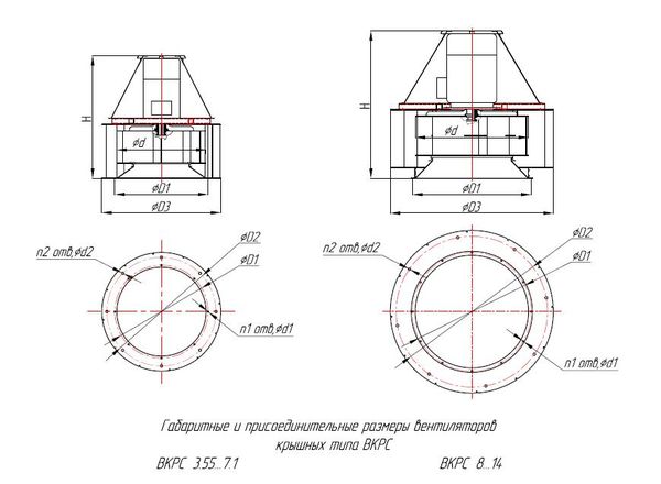
Габаритно-присоединительные размеры ВКРС

|
Типоразмер |
d, мм |
D1, мм |
D2, мм |
D3, мм |
H, мм |
d1, мм |
d2, мм |
n1, мм |
|
3,55 |
355 |
430 |
595 |
650 |
527 |
10,5 |
14 |
8 |
|
4 |
400 |
430 |
595 |
650 |
601 |
10,5 |
14 |
8 |
|
4,5 |
450 |
490 |
595 |
720 |
710 |
10,5 |
14 |
8 |
|
5 |
500 |
490 |
595 |
720 |
710 |
10,5 |
14 |
8 |
|
5,6 |
560 |
660 |
772 |
870 |
770 |
10,5 |
14 |
8 |
|
6,3 |
630 |
660 |
772 |
842 |
870 |
10,5 |
14 |
8 |
|
7,1 |
710 |
660 |
772 |
870 |
890 |
10,5 |
14 |
8 |
|
8 |
800 |
838 |
1072 |
1154 |
1048 |
10,5 |
14 |
8 |
|
9 |
900 |
850 |
1072 |
1180 |
1172 |
10,5 |
14 |
8 |
|
10 |
1000 |
1038 |
1272 |
1400 |
1450 |
10,5 |
16 |
8 |
|
11,2 |
1120 |
1038 |
1272 |
1500 |
1608 |
10,5 |
16 |
8 |
|
12,5 |
1250 |
1310 |
1522 |
1650 |
1782 |
10,5 |
16 |
8 |
|
14 |
1400 |
1310 |
1522 |
1800 |
1900 |
10,5 |
16 |
8 |
| № | Число лопаток | Частота вращения | Производительность 1000 х м³/час | Полное давление, Па, t=20°C | Полное давление, Па, t=400°C | Полное давление, Па, t=600°C | Масса, кг | V, m³ |
| №3,55 | 6 | 0,18*1500 | 0,6-2,5 | 0-260 | 0-113 | 0-87 | 65 | 0,34 |
| 1,5*3000 | 1,25-5,25 | 0-1160 | 0-505 | 0-389 | 66 | |||
| 9 | 0,25*1500 | 0,75-3,0 | 0-255 | 0-111 | 0-85 | 67 | ||
| 2,2*3000 | 1,60-6,30 | 0-1160 | 0-505 | 0-389 | 66 | |||
| №4 | 6 | 0,37*1500 | 0,75-3,75 | 0-320 | 0-139 | 0-107 | 77 | 0,4 |
| 3*3000 | 1,75-8,0 | 0-1520 | 0-662 | 0-510 | 77 | |||
| 9 | 0,55*1500 | 1,0-4,75 | 0-400 | 0-174 | 0-134 | 78 | ||
| 4*3000 | 2,0-9,5 | 0-1620 | 0-705 | 0-543 | 78 | |||
| №4,5 | 6 | 0,75*1500 | 1,5-5,5 | 0-460 | 0-200 | 0-154 | 81 | 0,6 |
| 5,5*3000 | 3,0-11,4 | 0-1950 | 0-849 | 0-654 | 79 | |||
| 9 | 1,1*1500 | 2,0-6,8 | 0-500 | 0-217 | 0-167 | 86 | ||
| 7,5*3000 | 3,8-14,0 | 0-2100 | 0-914 | 0-704 | 78 | |||
| №5 | 6 | 1,1*1500 | 2,0-8,0 | 0-600 | 0-261 | 0-201 | 90 | 0,8 |
| 9 | 1,5*1500 | 2,4-9,6 | 0-640 | 0-278 | 0-214 | 94 | ||
| №5,6 | 6 | 0,55*1000 | 1,8-7,2 | 0-320 | 0-139 | 0-107 | 98 | 1,05 |
| 2,2*1500 | 2,8-11,0 | 0-720 | 0-313 | 0-241 | 99 | |||
| 9 | 0,75*1000 | 2,2-8,8 | 0-340 | 0-148 | 0-114 | 100 | ||
| 3*1500 | 3,40-13,40 | 0-780 | 0-339 | 0-261 | 106 | |||
| №6,3 | 6 | 1,1*1000 | 2,6-10,5 | 0-400 | 0-174 | 0-134 | 107 | 1,12 |
| 4*1500 | 4,0-16,0 | 0-980 | 0-426 | 0-328 | 128 | |||
| 9 | 1,5*1000 | 3,2-12,6 | 0-440 | 0-191 | 0-147 | 112 | ||
| 5,5*1500 | 5,0-19,8 | 0-1060 | 0-461 | 0-350 | 139 | |||
| №7,1 | 6 | 2,2*1000 | 4,0-15,4 | 0-550 | 0-239 | 0-184 | 143 | 1,73 |
| 7,5*1500 | 6,0-23,5 | 0-1280 | 0-557 | 0-429 | 161 | |||
| 9 | 3*1000 | 5,0-19,0 | 0-600 | 0-261 | 0-201 | 156 | ||
| 11*1500 | 7,0-28,0 | 0-1320 | 0-574 | 0-442 | 175 | |||
| №8 | 6 | 4*1000 | 5,6-22,5 | 0-710 | 0-309 | 0-238 | 234 | 2,8 |
| 11*1500 | 8,75-33,0 | 0-1580 | 0-687 | 0-530 | 244 | |||
| 9 | 5,5*1000 | 6,0-24,0 | 0-650 | 0-283 | 0-218 | 326 | ||
| 18*1500 | 10,0-40,5 | 0-1720 | 0-748 | 0-577 | 326 | |||
| 3*750 | 6,5-26,25 | 0-740 | 0-322 | 0-248 | 240 | |||
| №9 | 6 | 7,5*1000 | 6,0-23,0 | 0-475 | 0-206 | 0-159 | 272 | 3,35 |
| 22*1500 | 7,5-32,0 | 0-900 | 0-391 | 0-302 | 280 | |||
| 9 | 4*750 | 7,5-28,0 | 0-620 | 0-269 | 0-208 | 298 | ||
| 11*1000 | 10,0-38,0 | 0-970 | 0-422 | 0-325 | 353 | |||
| №10 | 6 | 30*1500 | 8,0-32,0 | 0-600 | 0-261 | 0-201 | 403 | 4,6 |
| 5,5*750 | 11,0-43,0 | 0-1120 | 0-487 | 0-375 | 442 | |||
| 9 | 11*1000 | 10,0-40,0 | 0-680 | 0-296 | 0-228 | 467 | ||
| 7,5*750 | 13,0-52,5 | 0-1200 | 0-522 | 0-402 | 497 | |||
| №11,2 | 6 | 11*750 | 12,0-46,5 | 0-800 | 0-348 | 0-268 | 490 | 5,34 |
| 18,5*1000 | 15,0-62,0 | 0-1400 | 0-609 | 0-469 | 500 | |||
| 9 | 15*750 | 14,0-56,0 | 0-840 | 0-365 | 0-281 | 490 | ||
| 30*1000 | 18,0-74,0 | 0-1500 | 0-653 | 0-503 | 565 | |||
| №12,5 | 6 | 15*750 | 16,0-64,0 | 0-1000 | 0-435 | 0-335 | 600 | 7,11 |
| 37*1000 | 22,0-86,0 | 0-1780 | 0-775 | 0-597 | 578 | |||
| 9 | 22*750 | 20,0-78,0 | 0-1040 | 0-452 | 0-349 | 677 | ||
| 45*1000 | 26,0-104,0 | 0-1900 | 0-827 | 0-637 | 662 |
