Агрегат отопительный АО2
Артикул: АО2 🖶 Распечатать упрощённую версию
Номенклатурный ряд агрегатов отопительных АО насчитывает несколько моделей, каждая из которых выпускается в своем диапазоне типоразмеров. Агрегаты отопительные находят широкое применение в системах обогрева помещений различной площади и назначения. Как правило, это гаражи, автомобильные мойки, мастерские, складские и производственные здания.
Одноструйные отопительные агрегаты выпускаются в моноблочном исполнении. Основными элементами конструкции являются паровой или водяной калорифер и вентилятор осевого типа, размещенные на единой опорной раме и соединенные между собой металлическим воздуховодом.
Рабочая температура теплоносителя составляет от +95 до +150С при давлении до 1,2 МПа.
- ✗ Уточняйте наличие
- Цена:По запросу Получить скидку!
Общая информация
Характеристики
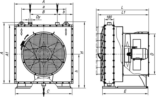
Габаритно-присоединительные размеры АО2
Варианты исполнения отопительных агрегатов АО-2

АО-2 - правого исполнения
АО-2 - левого исполнения
Габаритные размеры агрегатов воздушно-отопительных АО-2 на базе водяных калориферов типа КСк

| № АО2 | A | A1 | a | B | b | C | D | Dy | E | H | h | L | L1 |
| 3 | 580 | 530 | 250 | 390 | 70 | 490 | 400 | 32 | 720 | 683 | 355 | 795 | 805 |
| 4 | 702 | 654 | 375 | 460 | 97 | 620 | 500 | 32 | 770 | 810 | 420 | 855 | 835 |
| 6,3 | 784 | 737 | 500 | 580 | 78,5 | 745 | 500 | 32 | 770 | 892 | 460 | 870 | 835 |
| 10 | 952 | 905 | 625 | 740 | 82,5 | 870 | 630 | 50 | 790 | 1061 | 545 | 890 | 860 |
| 20 | 1201 | 1154 | 875 | 977 | 78,5 | 1120 | 800 | 50 | 915 | 1310 | 670 | 1055 | 1015 |
| 25* | 1201 | 1154 | 875 | 977 | 78,5 | 1120 | 800 | 50 | 915 | 1310 | 670 | 1055 | 1015 |
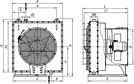
Габаритные размеры агрегатов воздушно-отопительных АО-2П на базе паровых калориферов типа КПСк

Габаритные размеры агрегатов АО-2 №3-6,3П на базе паровых калориферов

Габаритные размеры агрегатов АО-2 №10-25П на базе паровых калориферов
| № АО2-П | A | A1 | a | B | b | C | D | Dy | E | H | h | L | L1 |
| 3 | 580 | 530 | 250 | - | 100 | 490 | 400 | 50 | 720 | 683 | 355 | 795 | 805 |
| 4 | 702 | 654 | 375 | - | 100 | 620 | 500 | 50 | 770 | 810 | 420 | 855 | 835 |
| 6,3 | 784 | 737 | 500 | - | 100 | 745 | 500 | 50 | 770 | 892 | 460 | 870 | 835 |
| 10 | 952 | 905 | 625 | 410 | 248 | 870 | 630 | 65 | 790 | 1061 | 545 | 890 | 860 |
| 20 | 1201 | 1154 | 875 | 535 | 310 | 1120 | 800 | 65 | 915 | 1310 | 670 | 1055 | 1015 |
| 25* | 1201 | 1154 | 875 | 535 | 310 | 1120 | 800 | 65 | 915 | 1310 | 670 | 1055 | 1015 |
Габаритные размеры агрегата воздушно-отопительного АО 2-50 на базе двух водяных калориферов КСк 3-12

Габаритные размеры агрегата воздушно-отопительного АО 2-50П на базе двух паровых калориферов КП 3-12 (изготавливается по спецзаказу).

Технические характеристики АО2
| Параметры | АО2-3 | АО2-4 | АО2-6,3 | АО2-10 | АО2-20 | АО2-25 | АО2-50 |
| Производительность по воздуху, м³/ч | 2600 | 4000 | 6300 | 10000 | 20000 | 25000 | 60000 |
| Производительность по теплу, кВт | 24 | 46 | 73 | 116 | 220 | 306 | 900 |
| Температура теплоносителя на входе, °С | 150/70 | 150/70 | 150/70 | 150/70 | 150/70 | 150/70 | 150 |
| Установочная мощность, кВт | 0,25 | 0,37 | 0,55 | 0,75 | 2,2 | 2,2 | 7,5 |
| Сечение для прохода теплоносителя, м² | 0,00079 | 0,00102 | 0,00113 | 0,00147 | 0,00203 | 0,00249 | - |
| Сечение патрубка, м² | 0,00101 | 0,00101 | 0,00101 | 0,00221 | 0,00221 | 0,00221 | - |
| Диаметр патрубка, Ду | 32 | 32 | 32 | 50 | 50 | 50 | - |
| Число ходов | 4 | 4 | 4 | 4 | 4 | 4 | 4 |
| Число рядов | 3 | 3 | 3 | 3 | 3 | 4 | 4 |
| Расход воды, м³/ч, при скорости воды в трубках w=0,7÷1,0 м/с | 1,9÷2,7 | 2,4÷3,45 | 2,4÷3,45 | 3,5÷5,0 | 4,9÷6,9 | 5,3÷7,5 | - |
| Масса, кг | 70 | 95 | 120 | 160 | 255 | 280 | 820 |
