Схема обвязки: Электрокотел "Эконом" с радиаторами или конвекторами
Стандартная схема обвязки отопительного электрического котла с минимальным набором дополнительного оборудования. В качестве отопительных приборов могут использоваться любые виды радиаторов, конвекторов или секционных регистров. В качестве теплоносителя в системе отопления можно применять как воду, так и незамерзающие жидкости – антифризы на основе этиленгликоля или пропиленгликоля.
Общая информация
Характеристики
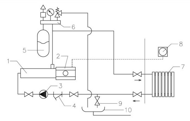
Схема подключения электрокотла в отопительную систему с радиаторами или конвекторами
При данной схеме обвязки котла электрокотел поддерживает температуру в здании по температуре, в контрольном помещении, где установлен комнатный термостат. Комнатный термостат рекомендуется устанавливать в помещениях со стабильной температурой (спальнях, гостиных). Вместо комнатного термостата может быть установлен термостат-программатор, который позволят программировать температуру в помещении по часам в течение дня и в течение всей недели. Также регулировка температуры может производиться автоматически в погодозависимом режиме при установке контроллера.
- Электрический котел
- Пульт управления электрокотла
- Циркуляционный насос
- Косой фильтр (грязевик)
- Расширительный мембранный бак
- Группа безопасности
- Система отопления
- Термостат комнатный
- Вентиль для слива теплоносителя
- Слив

